Services
Complete facade engineering, from design development to production-ready documentation.
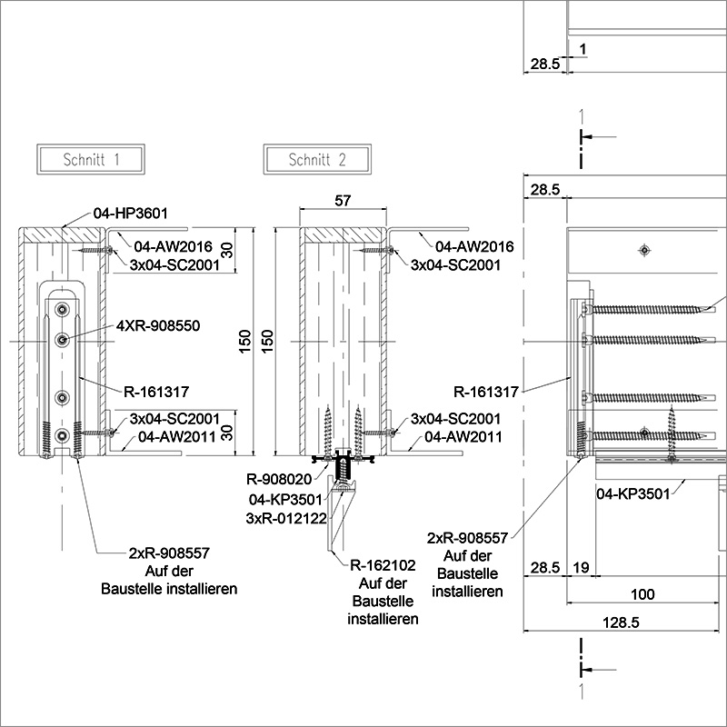
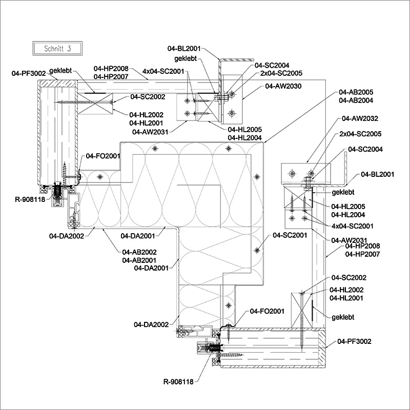
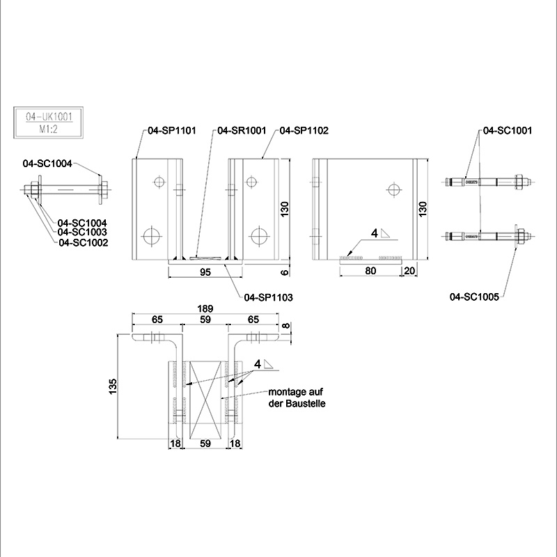
We provide full scope facade engineering services — from concept studies through fabrication — ensuring every detail is engineered, documented, and ready for seamless execution on site. Our expertise spans curtain walls, glazed facades, rainscreen cladding, unitized systems, and bespoke metalwork. With coordinated 2D documentation, BIM models, and 3D fabrication data, we deliver precision, constructability, and smooth collaboration at every stage.
Concept & Pre-Construction Services:
• Concept design (typical system details)
• Pre-construction design development for tender purposes
• Material consultancy (glass, aluminium, steel, composites, coatings)
• Visual mock-up (VMU) packages & 3D models
• Photorealistic renderings and immersive virtual mock-ups (VR/Oculus)
• Initial engineering (wind load assessments, performance checks, movement and tolerance report, glass check, loads to structure report)






Detailed Design & Documentation Services:
• General Arrangement drawings (shop drawings – details, sections, plans, elevations)
• Issued for Approval (IFA) drawings
• Issued for Construction (IFC) drawings
• 3D modeling for detailed design development
• BIM models (LOD 350–500)
• Raw material pre-order schedules






Fabrication & Installation Documentation Services:
• Fabrication drawings & production scheduling
• 3D modeling for fabrication
• Installation plans
• Material take-offs / Bills of Quantities (BoQ)
• As-built drawings
• Digital coordination & clash detection






Engineering Analysis Services:
• Structural Analysis & Reports (Wind, Structural, Connection Design, FEM Analysis)
• Thermal Performance Analysis & Reports (U value, Psi value – linear heat loss, Chi value – point thermal loss measured in 3D, Condensation Risk Analysis)



